岡山の木造住宅にコンクリートを使用しオシャレでデザイン性のある家に
スタッフブログ
こんにちは、岡山で木造・鉄骨・RCの注文住宅をお考えなら株式会社サンオリエントまで!青木です。
前回ブログで地鎮祭の様子を紹介させてもらった倉敷市のT様邸新築工事ですが今週確認申請がおりまして来週中頃から基礎工事が着工する運びとなりました!
現在は工事にかかる前の施工図作成・チェックなどの準備を行っているのですが今回T様のご希望で木造だけど部分的にコンクリートのテイストも取り入れたいということで
1階LDKに一部コンクリート打ち放しの壁を採用することになりました![]()
このようにサンオリエントではお客様のご要望に柔軟に対応させていただきます!!!![]()
![]()
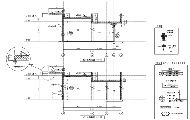
通常RC造の建物を施工する時には躯体図という仕上げを除いたコンクリートの形状と寸法を表した図面を作成し、その図面を基に鉄筋工や型枠大工が材料を加工し現場で組み立てていきます。
▼これが躯体図です

型枠材で使用されるコンクリートパネル(コンパネ)は900mm×1800mmの規格品でそのコンパネに桟木を打って繋ぎ合わせていきます。コンパネを繋ぎ合わせて1面の壁を建て込むのでコンパネの継ぎ目が目地のようにコンクリート面に出てきますし、セパレータ(型枠の枠と枠を繋ぎコンクリート打設時にかかる側圧に耐える強度を保たせるための金物)の跡も出てきます。
▼型枠脱型後のコンクリートはこんな感じです

こんな感じで赤い矢印部分がパネルの目地、
黄色の丸印がセパ跡としてコンクリート表面に残ります。
出来上がった躯体に仕上げがされる場合は最終的にコンクリートが見えなくなるのでコンパネ目地やセパの配置を気にせず型枠を組めますがコンクリート打ち放しとして残る場合は
このコンクリート打ち放し部分を「センス良く」、「見た目が綺麗」になるように設計し、パネルの割り付け図も書き職人さんに指示をだし、施工をさせていただきます。
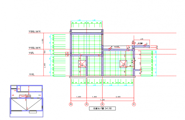
▼パネル割り付け図はこんな感じです

少し見づらいかと思いますが水色の線がパネルで緑色の線がセパになります。
▼型枠のセパは基本の3×6パネルでいくとこんな感じの割り付けになります

この基本寸法を基にセパの割り付けを考えていきます!
このような感じで打ち放し仕上げのRC壁は事前にパネルやセパの位置まで割り付けしてから施工にかかります。
さぁT様邸のコンクリート打ち放し壁のパネル割りも考えなければ![]()
サンオリエントならではの設計施工でどのようになるのか楽しみにしておいてください!
施工中、完成はブログでご報告させていただきます![]()
というわけで今回はコンクリート打ち放し仕上げに関するお話をお届けしました![]()
Sunorient
Sunorient
Sunorient
Sunorient
Sunorient
Sunorient
Sunorient
Sunorient
Contact お問い合わせ
住まいに関するご依頼・ご相談・ご質問など
お気軽にお問い合わせください。