センスいい!って言われるデザイナーズ住宅

新築一戸建て

TOP Property センスいい!って言われるデザイナーズ住宅

Property Information 物件情報

物件名 センスいい!って言われるデザイナーズ住宅
所在地 岡山市南区泉田
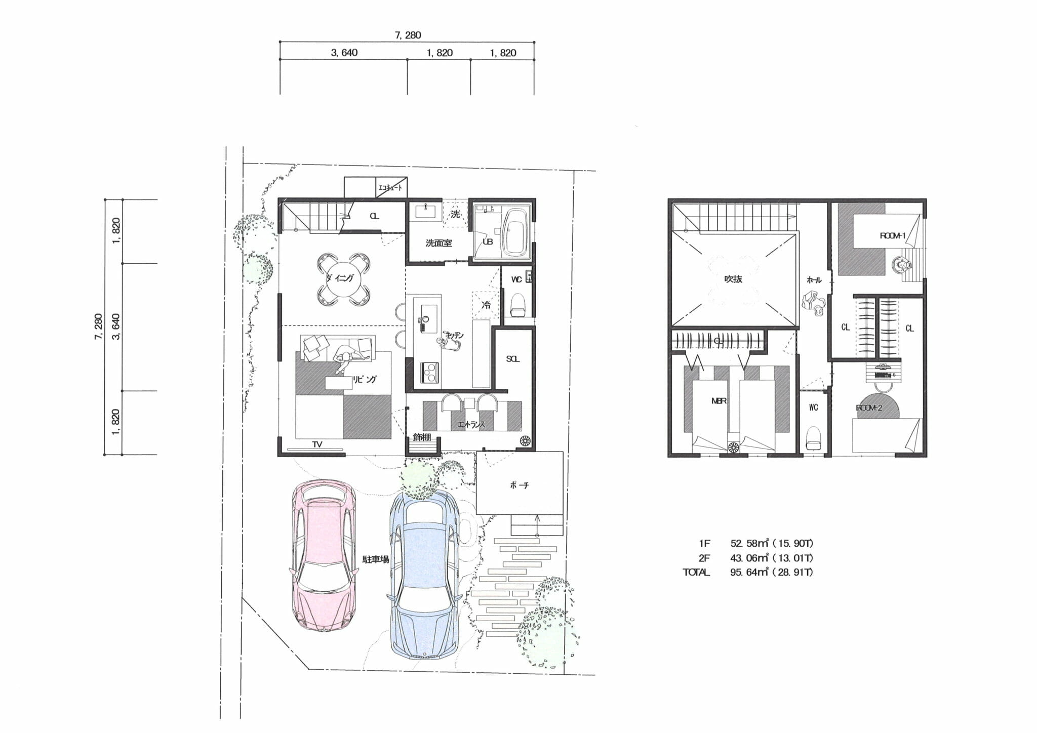
間取り 3LDK
築年月 2020年8月
建物面積 95.64m2 (28.9坪)
土地面積 132.25m2 (40坪)
FLOOR PLAN

間取り図

AREA MAP

周辺地図

Google Maps
Recommended information

おすすめ情報

小学校や幼稚園、はたまたスーパーやコンビニにも

歩いて10分以内にいけるという分譲住宅の鏡とも言える物件

をご紹介します!!



岡山市南区泉田に位置し、バイパスへのアクセスも最高。

また県道30号線にも車で3分でアクセスできるという好立地にありながら、

芳田小学校・芳田幼稚園にも歩いて3分で通う事が出来、

そのうえ、日用品ならほとんど何でも揃うという

P・MALLにも歩いて行けるという、

もう非の打ち所の無い場所を確保致しました!

全6区画うちの2区画を建売分譲住宅として販売致します!!



今回は建売の分譲住宅となりますが、ただの建売ではありません!!

なんと、設計及びデザイン監修を『風景のある家』の河島氏にお願いしました。

風景のある家のサイトはこちらから

これも以前からお付き合いがあり、親交を深めてきていたおかげです。

基本注文住宅ばかりを手掛けている当社ですが、

分譲住宅を手掛けるにあたり、

機能や性能を落としたくないのはもちろん、

デザイン性も他の分譲住宅よりも良くしたい!!

という強い思いがあったので、

その事を『風景のある家』の代表河島氏にぶつけたところ

快く協力して貰える事になりました!!



なので、これをご覧のアナタ!
ただの建売分譲住宅だと思わないで下さい!!
オシャレさもそこら辺の注文住宅にも全くひけをとりません(^_^)v

土地も40坪あり、通常の分譲住宅なら35~38坪くらいの土地面積と比べるとかなりゆったりとした庭がとれます。
建物も28.9坪の3LDK。
4人家族が明るく暮らせる間取りになっています。

キッチンやユニットバス、トイレと洗面台に至るまで
LIXILの人気筋の商品からチョイスしてセッティングしています。
そして給湯はエコキュート、コンロもIHのオール電化住宅仕様です!

これはきっと早い者勝ちになるはずです。
今すぐお問い合わせ下さい!!

★「プライベート見学会開催中!」★

プライベート見学会実施中!二人の新生活にぴったり!吹抜けのある開放的なリビング。新築デザイナーズハウスでワンランク上の暮らしを始めませんか?

安心してご見学いただけるよう一組ずつご案内しております。
広さや生活などイメージしていただきやすいようにリビングに家具を配置しております。
そちらの家具はプレゼントいたします!

見学ご希望の方は下記までご連絡ください。

フリーダイヤル 0120-445-085
メール     info@sunorient.com

担当は磯崎です。

PS この分譲地は最終的に全6区画となります。

今回販売をする2区画以外のうち、2区画は注文住宅として早々に契約頂きました。
更地の分譲用地も残り1区画も只今商談中です。
好立地のデザイナーズハウス、お気軽にお問合せください!

それでは連絡お待ちしております!
0120-445-085

#芳田小学校区
#岡山市南区泉田
#建売分譲住宅

PROPERTY OVERVIEW 物件概要

所在地 岡山市南区泉田
価 格
間取り 3LDK
建物面積 95.64m2 (28.9坪)
土地面積
132.25m2 (40坪)
築年月 2020年8月
階数・構造 木造2階建て
地目/地勢 宅地
交通
接道状況 西11.8m 南10.16m
地域地区 第一種住居地域
建ぺい率 60
容積率 160
引渡時期 2020年8月頃
現況 建築中
取引態様 土地(仲介) 建物(売主)

Contact Form お問い合わせフォーム

    物件名
    会社名
    お名前
    必須
    フリガナ
    必須
    住所
    必須

     

    ご希望の連絡方法
    必須
    メールアドレス
    必須
    電話番号
    必須
    お問い合わせ内容
    必須

    残文字数 : 300

    Sunorient

    Sunorient

    Sunorient

    Sunorient

    Sunorient

    Sunorient

    Sunorient

    Sunorient

    Contact お問い合わせ

    住まいに関するご依頼・ご相談・ご質問など
    お気軽にお問い合わせください。

    特殊建造物特設サイト