岡山市中区福泊①号地

土地

Property Information 物件情報

物件名 岡山市中区福泊①号地
所在地 岡山市中区福泊
交通 バス:停留所「福泊」まで700m徒歩9分
土地面積 139.3m2 (42.2坪)
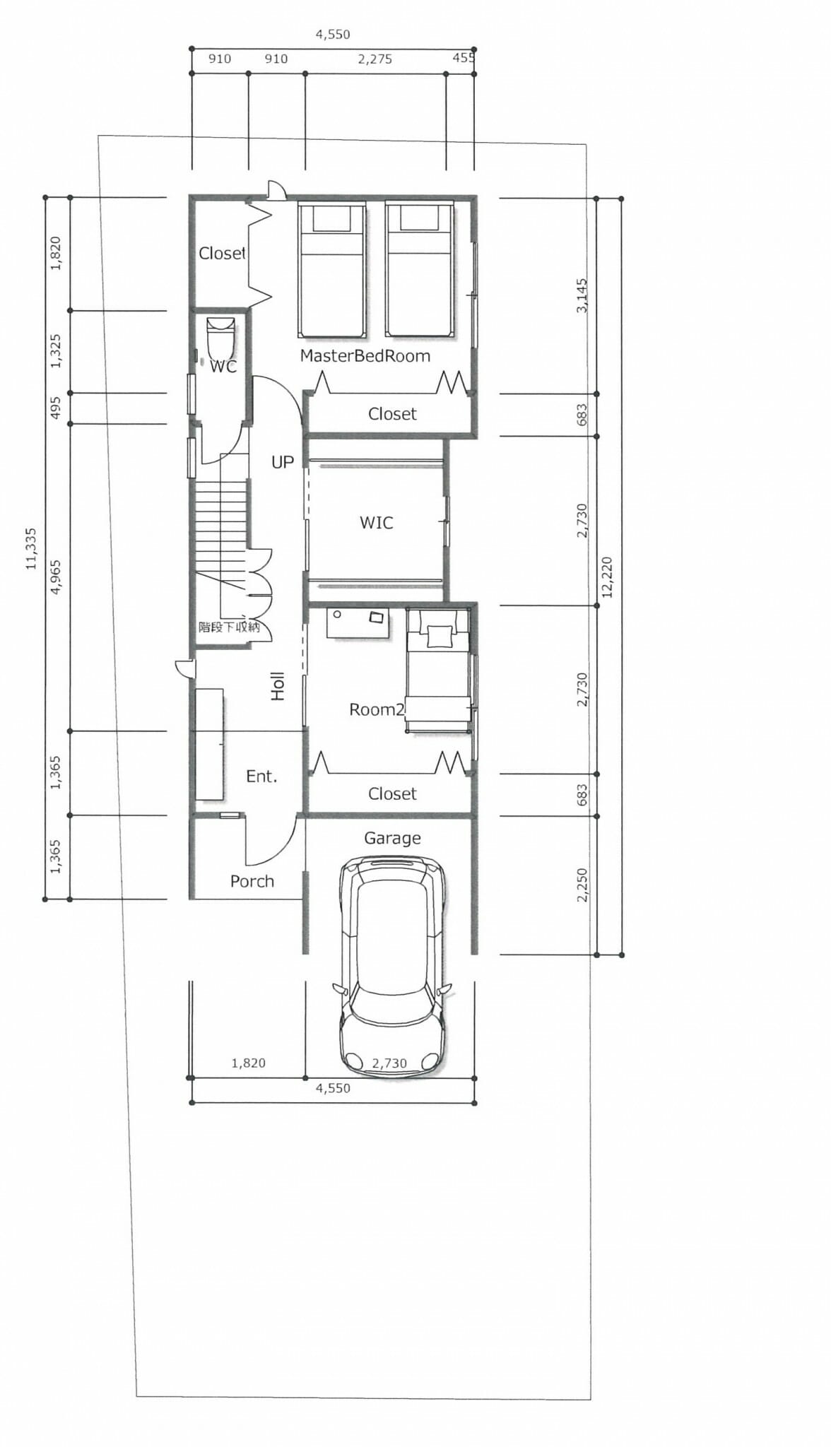
FLOOR PLAN

間取り図

AREA MAP

周辺地図

Google Maps
Recommended information

おすすめ情報

『福』が『泊まる』町 『福泊』

ここ岡山市中区福泊にお手頃な住宅用地をご案内します。

子育て世代にうってつけの、小学校・中学校共に通学に20分圏内の立地です。

さらに、スーパーやドラッグストアー等、日常の買い物に必要なお店が車で5分圏内に何件もあり非常に便利です。

元々賃貸住宅が2棟建っていた土地を当社が買い取り、解体分割後に提供していますので弱冠間口は狭くなっていますが、日常生活には全く問題ないと思います。

車の通行量が多い通りから中に入っていますので、小さなお子さんがいてちょっとくらい道路で遊んでいてもそんなに危険はないと思います。

さてこの土地に対しても、

「そうは言ってもこんな細長い土地にちゃんとした家が建つの・・?」

と言った不安をお持ちの方も多くいるのではと思いますので、セットプランをご用意しました。

オススメ画像をご覧下さい!

南北に長い土地の特長を活かした建物形状にして、2階リビングでまとめてみました。

木造2階建て2LDKですが、大きめのWICがありトイレも2カ所さらに2階キッチンの背面にサービスバルコニーがある為とても使いやすくなるアイデアがちりばめられています。

子育て大奮闘中の当社山本による、日常で自分が感じている導線のストレスを解消する渾身の一作です!!

大きさですが、1階が44.13m2(13.37坪)2階が50.27m2(15.23坪)延べ面積94.4m2(28.6坪)になります。

そして気になるお値段ですが、建物本体に外構工事(駐車場床のコンクリート、玄関までのアプローチのタイル貼)をプラス、さらに照明器具とエアコン3台(リビング・Bedroom・Room2)までセットして、消費税込1,930万円となります。

しかも、このセットプランの良いところは、間取りや金額が明確になっているので、建売と同じような分かりやすさがある上に、これから建てるので、内外装の色やキッチンの表面材の色とかも選べます。

差額の負担を頂けば、仕様の変更等もお受け致します!!

まるで注文住宅とほとんど変わらない、と思いませんか??

注文住宅の選べる楽しさと、建売住宅の分かりやすさの良いとこ取りをしたこのセットプランぜひ活用して下さい。

家造りどうしようか??と悩んでいるアナタ!!

今すぐお問い合わせ下さい(^_^)

PS 当社売主につき、当社にお申し込み頂くと土地の仲介手数料が不要です!

PROPERTY OVERVIEW 物件概要

所在地 岡山市中区福泊
価 格
間取り
建物面積
土地面積 139.3m2
築年月
階数・構造
地目/地勢 地目:宅地
地勢:平坦
設備:上下水道あり/電気あり/ガス配管なし
交通 バス:停留所「福泊」まで700m徒歩9分
接道状況 南7.6m・幅員4m
地域地区 第一種低層住居専用地域
建ぺい率 50%
容積率 100%
引渡時期 即時
現況 空き地
取引態様 当方売主 仲介手数料当方不払い
水道負担金 242,000円 別途要

Contact Form お問い合わせフォーム

    物件名
    会社名
    お名前
    必須
    フリガナ
    必須
    住所
    必須

     

    ご希望の連絡方法
    必須
    メールアドレス
    必須
    電話番号
    必須
    お問い合わせ内容
    必須

    残文字数 : 300

    Sunorient

    Sunorient

    Sunorient

    Sunorient

    Sunorient

    Sunorient

    Sunorient

    Sunorient

    Contact お問い合わせ

    住まいに関するご依頼・ご相談・ご質問など
    お気軽にお問い合わせください。