建築現場の仕事あれこれ ほんの一部を紹介します!!
スタッフブログ
みなさんこんにちは!
多才な現場監督育成を目指している、株式会社サンオリエントの磯崎です!!
さて先週のブログをアップしたら、その記事から当社ホームページに行き連絡してきてくれた人がいました。
なんと幼なじみ!
しかも小・中学校と一緒で高校も兄弟校だった為良くあっていた友達でした。
就職して県外に出た為地元の友人達とはほとんど接点が無くなりましたが・・・
こんな事もあるんだな~、恐るべしインターネット(^_^;)
先々週、以前うちで働いてくれていた元社員から、出産報告のLINEが来ました。
ちょっと早産でしたが母子ともに無事との事。
3ヶ月くらい前から調子があまり良くなく入院していた様で、妊娠も口止めされていましたがめでたしめでたし 😀
と思っていたら先週親戚のおばあちゃんが亡くなりました。
90歳の大往生でしたが、晩年はガンとの戦いで苦しんだようです、小さい頃良くしてもらっていたのに何もお返しできていませんが、ゆっくり休んでほしいと思います。
なんだか色々騒がしくなってるぞ、俺の身辺!!!
というわけで本題に入ります。(どっちが本題だ?)
当社は建築の施工をメインに行っている会社であり、自分自身も元現場監督として現場管理に携わってきました。
その現場監督の業務の中に「施工図の作成」というのがあります。
これはどちらかというとビル建築の分野に特に要求される業務であり能力です。
そしてRC(鉄筋コンクリート)の現場を管理する上では非常に重要な事なのです。
通常世間的に言われる「図面」というのは設計図です。
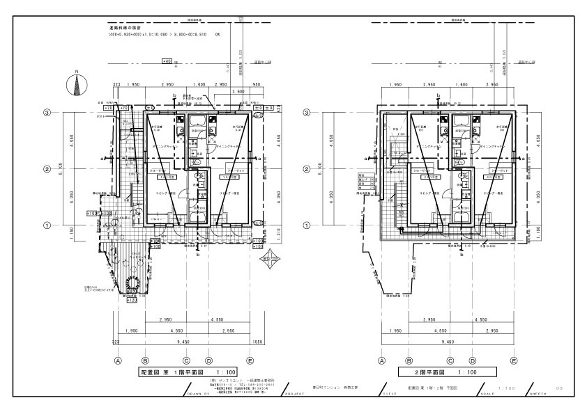
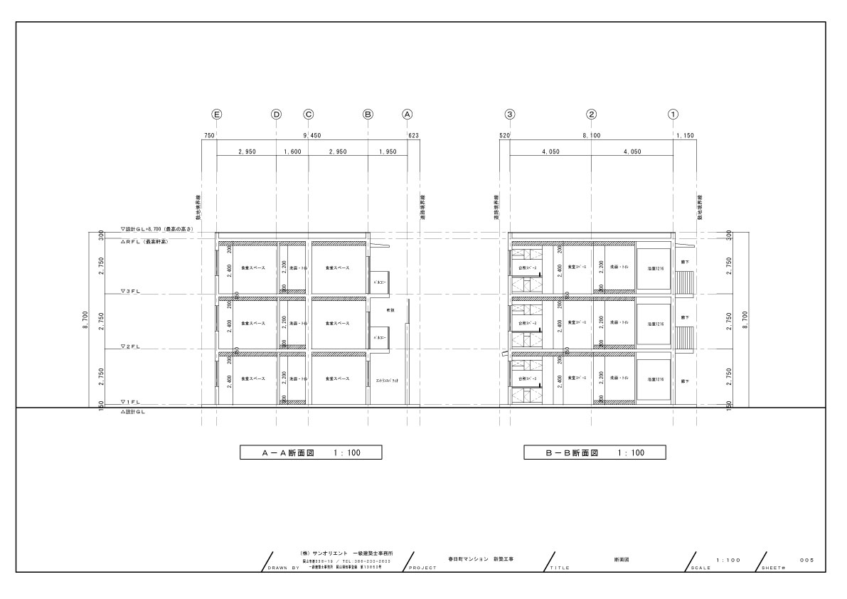
ちなみに以前施工した建物の設計図はこんな感じ↓↓↓

設計図なので、法規的な要素の書き込みがあったり、内装間仕切りもあったり、もちろん仕上げの内容の書き込みや植栽の書き込みもあったりで盛りだくさんの情報が
盛り込まれています。
ちなみに上の図面は平面図で下が断面図になります。↓↓↓

この他に立面図や展開図、建具表や電気設備図、給排水設備図、空調換気設備図それから構造の事だけを書いている構造図等がずらりと並びます。
「建築の仕事をしている人だったら、みんな図面を見れば分かるんでしょ?」
と思われがちですが、そこが大きな落とし穴なのです。
多くの場合職人さんというのは、自分の職種以外の事はあまり関係ないのでほとんど知りません。
(もちろん中には色々勉強してよく知っている方もいますよ!)
特に自分の職種とかけ離れている場合、(例えば今話題の杭工事屋さんと内装のクロス屋等)お互いの仕事の事を知っておく必要性が全くないので全く知りません。
それと同時にそれぞれの仕事の内容が描かれている設計図の部分は分かっても他の情報は読み取れないのです。
内装屋サンであれば内装の仕様を描いている部分しか必要ない、杭屋サンであれば杭の仕様や基礎との取り合いを描いている部分以外の設計図は必要ないのです。
逆に言えば、設計図をのすべての内容を見て理解できるのはほとんどの場合設計者や設計事務所関係者、もしくは元請業務をしている会社(いわゆるゼネコンです!)のスタッフや現場の施工管理者という事になります。(もちろん他にもいらっしゃると思いますが、あくまで一般論です!)
そこでその設計図に描かれている内容を全体的に酌み取り、各専門職の協力会社や職人さん達にそれぞれの内容を具体的に伝えていく為の重要なツールとして「施工図」というのが登場してくる訳です!!
一言に「施工図」と言ってもそれぞれの工程や場面によって必要になる図面が変わってくるので多種多様な種類が必要になります。
自分たちがこの業界に入った頃、現場担当者はとにかく施工図を描ける様にと日々練習していました。
当時はCADなど無くドラフターでした。

はじめは全く意味の分からない図面に向かい、袖と原図を真っ黒にしながら描いては「なんだこれは?こんな図面使えるか!!」と怒られる毎日。
ただただそれの繰り返し。
特に職人さんには見てももらえない事もありました。
そりゃ下手すりゃ自分の孫みたいな歳のまだ子供みたいなのが、現場監督だと言ってやってきて、使えもしない図面を持ってくればちょっといじめてやろうという気にもなるというもの(^_^;)
確かに色々やられましたけど・・・
それも世間の荒波にもならない、さざ波の一つとしてかわしつつ後は持ち前の負けん気で職人さん達と膝つき合わせて色々話して聞き出して言ったわけです。
もちろん会社の先輩や上司にも色々教えてもらいましたけど。
というわけで、その「施工図」ってどんな図面なんだよという肝心の部分ですが、ここに来るまでちょっと長くなってしまったので次回に持ち越したいと思います!!
続きも呼んでみたいという奇特なあなた!!!
ここをクリックしてURLをブックマークに登録しておいて下さい!!
それではまたm(_ _)m
Sunorient
Sunorient
Sunorient
Sunorient
Sunorient
Sunorient
Sunorient
Sunorient
Contact お問い合わせ
住まいに関するご依頼・ご相談・ご質問など
お気軽にお問い合わせください。