建築現場の仕事あれこれ ほんの一部を紹介します!! 「施工図編」 その2
スタッフブログ
みなさんこんにちは!!
実は元インターハイ選手(^_^;)
株式会社サンオリエントの磯崎です。
ブログの記事にも載っていますが、当社はファジアーノ岡山をささやかながら応援しています。
ファジアーノの草創期、まだJリーグに上がる前にファジアーノの木村社長他、サポーター企業の有志や関係者で集まってちょくちょくフットサルをやっていました。
懐かしいですねー、今や木村社長は大忙しでとてもそんな時間はとれないと思いますが・・・、そのころは月2回とかやってたんですよ!!
しかもそのゲーム中、不慮のちょっとした接触事故で頭が割れ(骨は大丈夫ですよ!!)、救急病院に行き5針ほど縫う怪我をしました。
しかし決してそのくらいの事ではめげない自分は、頭に包帯代わりのネットを被った状態で、打ち上げの焼鳥屋に突入しました。
さすがにアルコールはまずいのでお茶にしましたが・・・、まっすぐ帰れよ、子供かよ!!!
でも、頭から流血して病院にいく怪我をした人がいても、全く気にせず打ち上げをやっちゃうくらいのこのメンバーが大好きです(^_^)v
がんばれファジアーノ!!
またまた話が脱線してしまいました。
さて今回は施工図についての続きです!!
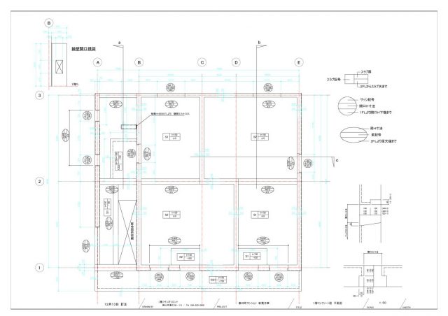
様々ある施工図の中でもRCの現場に欠かせない「コンクリート図」と言うのがあります。

前回紹介した設計図と比べてみましょう。

書き込まれている内容が大幅に違うのが分かりますでしょうか?
この「コンクリート図」というのは躯体(コンクリート)の形や寸法にフォーカスして描いているもので、主に型枠大工さんや鉄筋屋さんが必要とします。
さらに埋設配管やスリーブの打込み等の位置確認の為に、電気・給排水・空調・換気等の設備関連業者さんにも必要になってきます。
こんなあっさりした図面ですが、窓やドアの位置や寸法、内装仕上げとの取合い収まり、タイル等の割付、樋や露出配管等の干渉の確認等考えなければならない事がたくさんあり、それらをすべて確認して解決して、やっとこの一枚の図面になるのです。
つまりこれがちゃんと描ける様になれば一人前というわけです。
線の一本、寸法の一つにまで何かの根拠があるわけですから。
しかし最近では現場の業務が多忙になり、現場監督自身が自分でこういった図面を描けない状況が多くなってきました。
そんな時はこの施工図を外注してそれをチェックして使える様にするわけですが、やはりチェックだけでは自分自身で描いた様には身に付かないものです、残念ながら。
と言うわけで当社では、極力施工図は自分たちで描くように努めています、それがやがてはそのスタッフ一人一人の技術的な力になり、ご縁を頂いたお客様に仕事としてお返し出来る様になると思っているからです。
とは言いつつスタッフも手がいっぱいで、どうしても時間がとれない時などは外注もお願いしてしまいます。

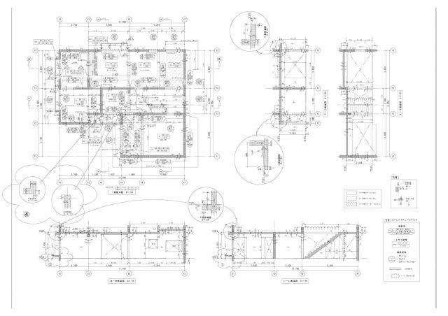
これもRC住宅ですが、ちょっとややこしくなるとこれくらいの描き込みになります。
規模の大きな建物だと平面だけでも一枚に入りきらないので、何枚にも分けて描くようになります。
ちなみにこれ一枚で2万5千円~3万5千円くらいかかります。
それでも施工図屋さんは大忙しです、需給の問題出来る人が少なくなってしまったんですね。
一旦この能力を得てしまえば、会社がつぶれようがクビになろうが心配ありません!!
机一つ、パソコン一台あれば食べていくのに困る事はありません!!
これから仕事を探す方必見です!!
まだまだ棄てたもんじゃない、現場の世界。
さあ、施工図作成の力を身につけよう!!
と言うわけで、当社ではやる気のある若いスタッフも随時募集しています。
一緒に頑張りましょう!!
Sunorient
Sunorient
Sunorient
Sunorient
Sunorient
Sunorient
Sunorient
Sunorient
Contact お問い合わせ
住まいに関するご依頼・ご相談・ご質問など
お気軽にお問い合わせください。