ふたつのアーバンテラス(賃貸マンション)新築工事がスタートしました!【前編】
住宅コラム
From:磯崎←かなりお久しぶりです(^_^;)
こんにちは!
年度末からの完成工事ラッシュで忙殺されてました・・・
それと共に、新しい物件の準備も進めていたので、かなりバタバタしていたのです。
その中で5月に確認申請を受領し工事がスタートした二つの物件があります。
今回はその物件を紹介したいと思います!
まず一つ目は4月のブログでもちょっとだけ紹介した『アーバンテラス春日町』です。
こちらは岡山大学病院や岡山市役所が近くにあるまさに好立地で居住地としてもとても人気のエリアです!
今回こちらにRC造8階建ての賃貸マンションを新築します。
ここは敷地が197.25m2(59.77坪)とあまり大きくないためワンフロアー3部屋づつでのレイアウトとなっています。
1階がエントランスと1DKが2部屋、2~8階がそれぞれ1DK3部屋ずつ、全部で23部屋の建物です。
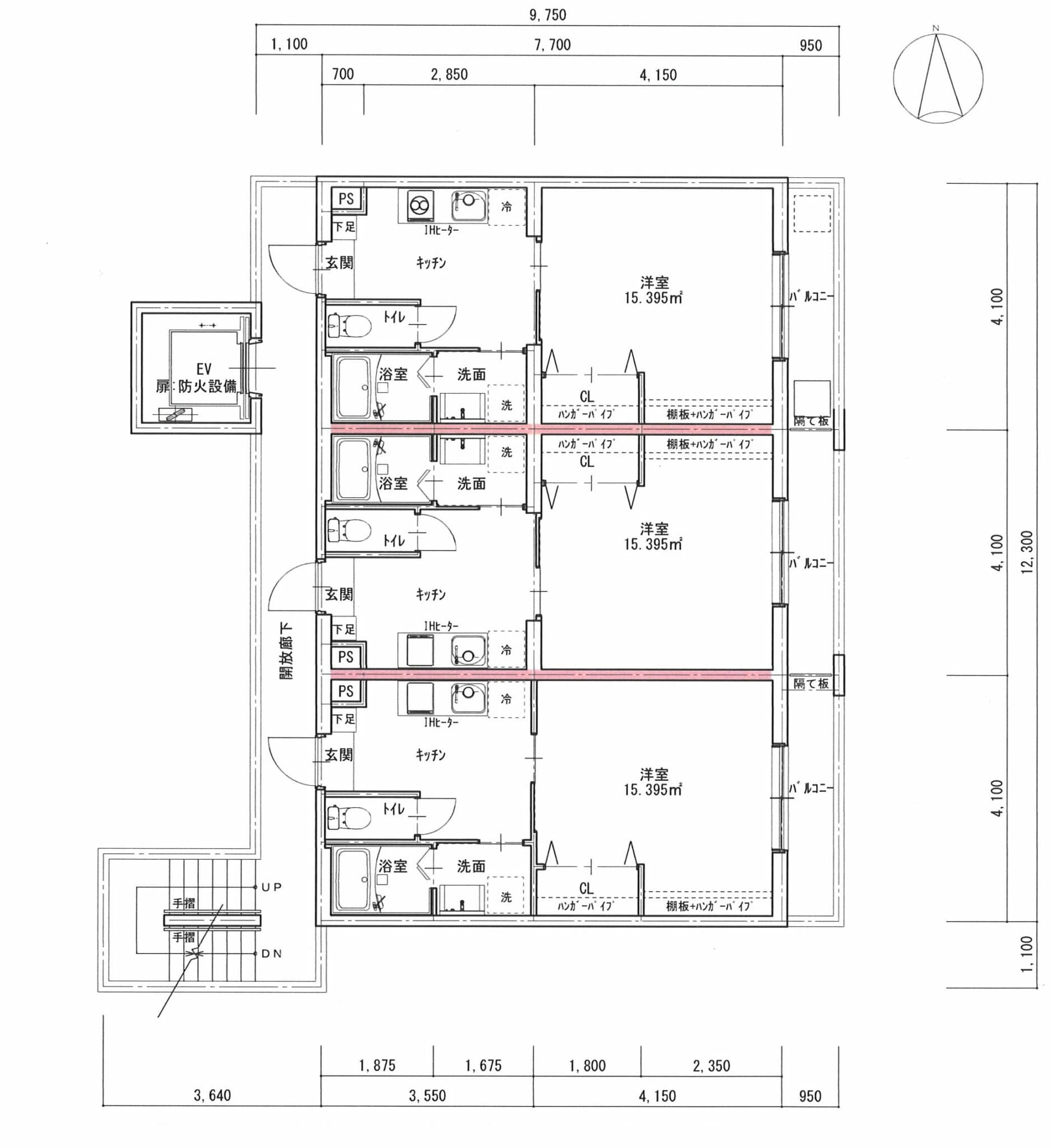
間取りの図面はこちら↓↓

さてさて、この図面を見て何かお気づきになりましたか??
このマンション8階建てなんですがこの平面プランです!
普通の8階建ての建物と違う部分があるんですが、それはどこでしょう?
正解は・・・・
『柱がない』
でした!!
2階建てや3階建ての建物だったら壁式構造といって柱がない建物が一般的なんですが、8階となると非常に珍しいと思います。
一般的には5階までは壁式構造で対応可能とされてきて、5~8階でも対応可能という法改正がなされたのですが、実際には構造計算等の対応が難しくほとんど使われていませんでした。
じゃあどうやって建てていたのかと言うと、柱と梁で軸組を構成する『ラーメン構造』と呼ばれる造り方で建てられていました!
そうは言っても何の事だかわからない???
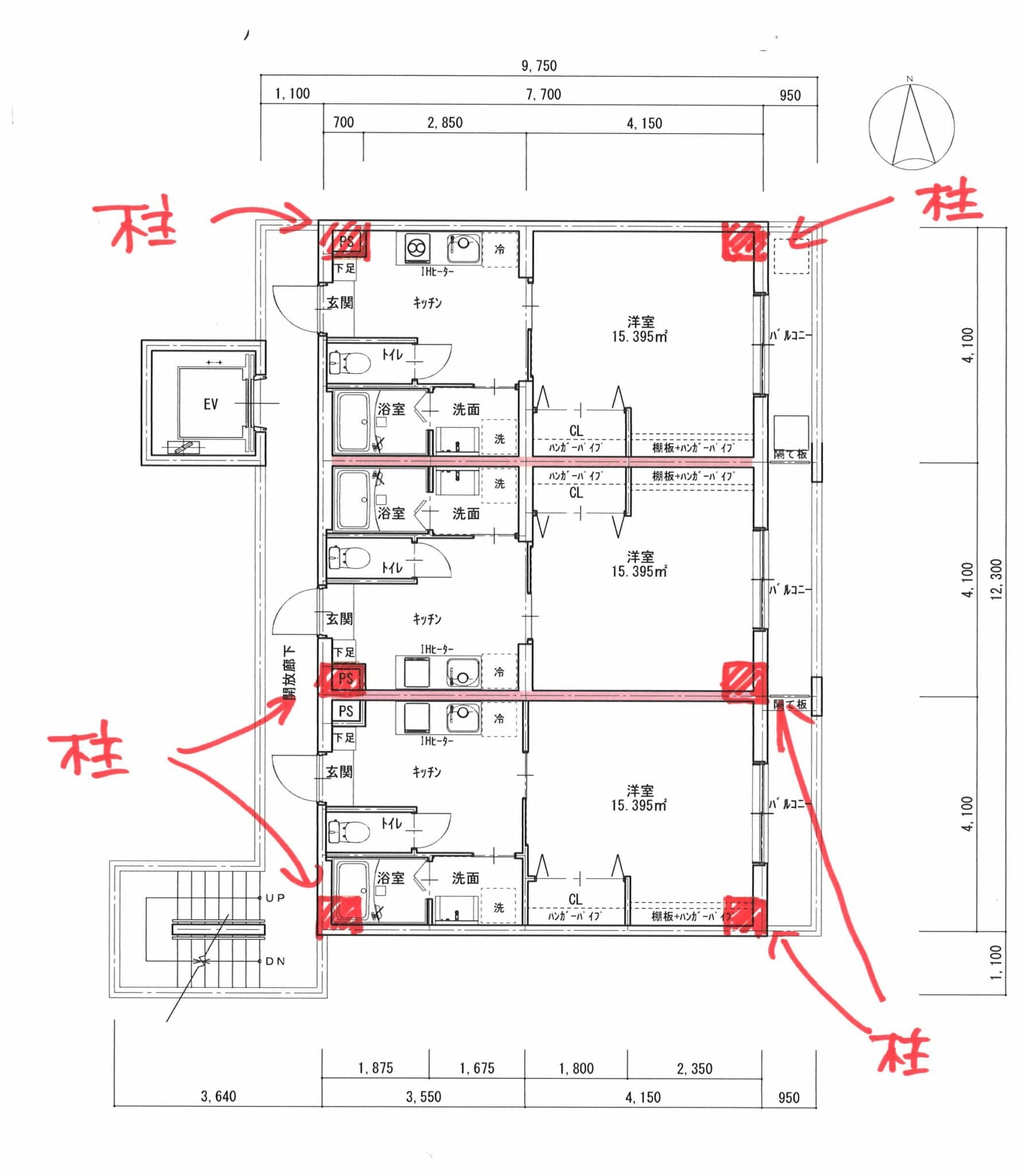
と言う方のために今回の建物をラーメン構造で建てたらどうなるか?と言うテストをやってみたいと思います。

たとえばこんな風6本くらい柱が入ってきます。
柱が入ってくると自ずと部屋の中のレイアウトに影響を及ぼしてきます。
今回で言えば洋室内はチョット出っぱりが邪魔になるくらいですが廊下側の方が諸々影響されていきます。
図面内にある「PS」という部分は「パイプシャフト」と言いまして、給水管や配水管またガス管などの配管スペースになります。
なので、もし柱が来てしまうと別のスペースに設けなければいけません。
さらにラーメン構造の場合柱をつなぐ梁があり(これがなかなかの大きさ)パイプシャフト等のスペースに制約を加えます。
このパイプシャフト、アナタならどこにしますか?
もう一つ、一番下の部屋だとお風呂の位置を完全に変えないといけません。
こうなると部屋全体のレイアウトにかなりの影響を与えてしまいます。
同じフロアー内でも全く別の間取りで部屋を作っていかないといけなくなり、かなりデメリットが大きくなります。
まあこういった諸々の事情を考慮した上で今回は壁式構造にトライしてみたわけです!!
普段とは違う構造計算なので計算書のボリュームも半端じゃなく、なんと1127ページ。
でかいファイル2個分にもなりました(^_^;)

壁式構造のメリットは間取りがすっきりすると言う事だけではなくて、出っ張りが少ない分、型枠や鉄筋などの躯体工事もかなり簡略化できる為、工期の短縮やコストダウンにもつながります。
今回8階建てのRC壁式構造はたぶん岡山県下初だと思いますが、工期の短縮等の面はこれから実際の工事の中で検証していきたいと思います!!
追跡で情報をアップしてきますので今後の投稿にも乞うご期待!!
現場の方ですが杭打ち完了し、基礎の掘削に入っていってます。

杭を打ってます!

道路際なので、細心の注意を払って基礎工事進めてます!
今日はここまででいったん終了とします。
次回、ほぼ同じ頃着工したもう一つのアーバンテラスの工事を紹介したいと思います。
それでは最後まで読んでいただきありがとうございました。
磯崎@サンオリエント
P.S. 施工事例写真や家造りの秘訣などのインタビューをyoutubeで配信を始めました!!
是非ご覧下さい!!
◆◆◆◆◆◆◆◆◆◆◆◆◆◆◆◆◆◆◆◆◆◆◆
木造住宅・RC住宅・店舗など新築やリフォームの
建物事例はこちらから
実際に建てられたお客様にお答えいただいた
お客様の声はこちらから
木造住宅・RC住宅や健康建材のカタログなど
資料請求はこちらから
◆◆◆◆◆◆◆◆◆◆◆◆◆◆◆◆◆◆◆◆◆◆◆
Sunorient
Sunorient
Sunorient
Sunorient
Sunorient
Sunorient
Sunorient
Sunorient
Contact お問い合わせ
住まいに関するご依頼・ご相談・ご質問など
お気軽にお問い合わせください。



