ふたつのアーバンテラス(賃貸マンション)【後編】
不動産・土地探し
From:磯崎
こんにちは!
今日は6/23日に投稿したブログの後編をお届けしたいと思います。
前回紹介した物件は、岡山初となるRC壁式構造8階建ての賃貸マンションでしたが、
今回は木造3階建ての物件となります。

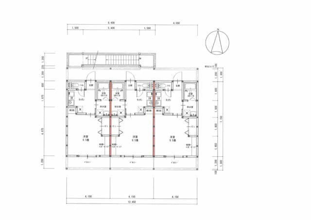
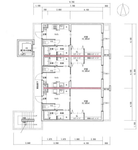
今回は木造の建物なので構造的に特筆すべきものはないのですが、間取りや設備仕様について少し触れてみたいと思います。
ちなみにもう一つのアーバンテラス春日町の間取りも一緒に見ていってみましょう!

図面の向きが違うのでちょっと分かりにくいかも知れませんが、両方に共通している事は一部屋の面積が約30平米そして居室(洋室)の面積が約9.5畳と言う事です。
単身者向けの1Kのアパート(マンション)ではちょっと広めですが、どう感じられますか?
20年前なら居室6畳、10年前なら居室8畳がスタンダードでしたが、もう居室10畳という時代に入ってきました。
今回の2物件もCLがあるのでここを含めれば10.5畳という事になります。
さらにキッチンは長さが1.5mあり、コンロもIHで2口ついています。
決して大きなキッチンではないですが、ある程度の料理は出来ると思います!
そして、お風呂もちょっと前までは幅1.4mx奥行1mの物を入れていましたが、今回からは幅1.6mx奥行1.1mで浴室乾燥暖房器付きの物を標準装備にしました。
トイレのウォシュレットと暖房便座は言わずもがな付いています!!
別にこれは「俺たちこんなハイスペックな物を建ててるんだぜ!」と自慢したくて書いているわけではありません。
こういった仕様は、建てる前に入居対象者となるペルソナを想定し、マーケティングを行い、少なくとも今後10年間は競争力を持って集客していけるようにと、入居斡旋の業者さんと協議を重ねて決めていきます。
当然、入居斡旋する立場としては少しでも仕様が良い方がお客様を案内しやすいのでどんどん要求してくるのですが、その要求を全部のんでいると建築コストが上がりすぎてしまい事業として成り立たなくなってしまうのでとても慎重に内容を協議していきます。
当社は建てたら終わり、とか、売ったら終わりではなく自社で所有して賃貸経営もしているので、こうやったらお客様から喜んで頂ける、逆にこんな事したらお客様からそっぽを向かれると言うのを常に肌で感じています。
なので、作り手側の都合だけで建てていっても良い結果につながらないと言う事を嫌と言うほど思い知らされています。
よく、利回りだけを謳って収益物件を建てては売っていっている業者がいますが、内容をみてみると「5年後には競争力を失うな~」という物件も少なくありません。
それでもこれから不動産投資を始める方や、内容を良く吟味せずに購入を決める方が多くいて不安を覚えています。
これから不動産投資を始めようと思う方や、すでに収益物件を持っているが赤字経営になってしまっていて、これからテコ入れを考えられている方は、是非こういった5年後10年後の競争力という点に意識を向けてもらえれば良いのではないかと思います。
目先の利回りに惑わされ、あまりよくない物件に飛びつくとその投資は失敗に終わり、ひいては不動産投資などリスクの塊だという話になってしまいがちですが実は違います。
完全にマーケティングの段階で失敗してしまっているのです!
そうかと言って、そういった条件の整った物件は売り物件として市場に出てきませんのでなかなか買えません。
そうなると新築するしかないのですが、それもなかなかハードルが高くて・・・、一体どこから始めれば良いのか???
実はこれが良く相談される内容なのです!!
そういった疑問や不安をお持ちの方がいらっしゃいましたら是非ご相談下さい!
答えは簡単には出ませんが、焦って動くのが一番の失敗への近道です(T_T)
これら2つの物件が完成する頃にはまた完成見学会も開催できたらと思っています。
最後に2つのアーバンテラスの完成予想パースを見て頂いて最後にしたいと思います。

アーバンテラス春日町

アーバンテラス奉還町
最後までおつきあい頂いて、ありがとうございました!
磯崎@サンオリエント
P.S. 施工事例写真や家造りの秘訣などのインタビューをyoutubeで配信を始めました!!
是非ご覧下さい!!
アップロードのお知らせなど、適時お届けしますのでチャンネル登録もお願いします!!
Sunorient
Sunorient
Sunorient
Sunorient
Sunorient
Sunorient
Sunorient
Sunorient
Contact お問い合わせ
住まいに関するご依頼・ご相談・ご質問など
お気軽にお問い合わせください。
